Офис
Электрозаводская / 10 мин. пеш.
Почтовая Б. ул, д 26В стр 2, Москва
- Общее
- Коммерческие условия
| Тип сделки | Аренда |
| Назначение | Офис |
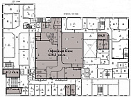
| Площадь блока, м2 | 638 |
| Деление от, м2 | - |
| Этаж | 2 |
| Состояние помещений | С отделкой |
| Ставка, м2/год | 7 700 р |
| Стоимость в месяц | 409 383 р |
| Операционные платежи | Включены в ставку |
| Коммунальные платежи | По факту |
| НДС | Включен в ставку |
Не нашли подходящей площади? Оставьте запрос


