Офис
Кропоткинская / 3 мин. пеш.
Знаменский Б. пер, д 2 стр 3, Москва
- Общее
- Коммерческие условия
| Тип сделки | Аренда |
| Назначение | Офис |
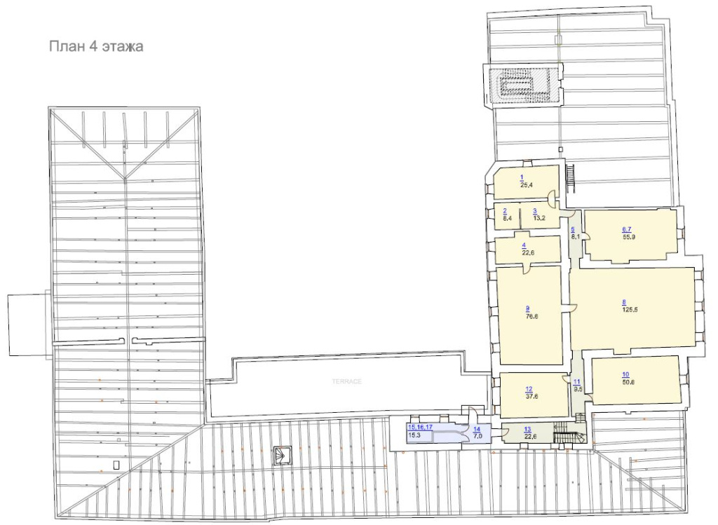
| Площадь блока, м2 | 478 |
| Деление от, м2 | - |
| Этаж | 4 |
| Состояние помещений | С отделкой |
| Ставка, м2/год | 38 000 р |
| Стоимость в месяц | 1 514 617 р |
| Операционные платежи | Включены в ставку |
| Коммунальные платежи | Включены в ставку |
| НДС | Включен в ставку |
Не нашли подходящей площади? Оставьте запрос





