Офис
Проспект Вернадского / 7 мин. пеш.
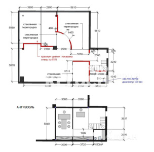
Вернадского пр-кт, д 29, Москва
- Общее
- Коммерческие условия
| Тип сделки | Продажа |
| Назначение | Офис |
| Площадь блока, м2 | 213 |
| Деление от, м2 | - |
| Этаж | Многоярусный блок |
| Состояние помещений | С отделкой |
| Ставка, м2 | 177 736 р |
| Стоимость за блок | 38 000 000 р |
| НДС | Включен в ставку |
Не нашли подходящей площади? Оставьте запрос