Найти готовый к въезду офис

Технопарк "NAGATINO i-LAND"/ Бизнес-центр "Ломоносов", 650 м2

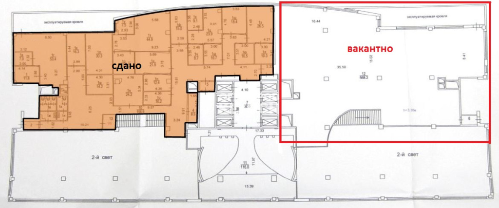
Офис
Технопарк / 3 мин. пеш. Андропова пр-кт, д 18 стр 7, Москва
  • Общее
  • Коммерческие условия
Тип сделки Аренда
Назначение Офис
Площадь блока, м2 650
Деление от, м2 -
Этаж 2
Состояние помещений Без отделки
Ставка, м2/год 15 000 р
Стоимость в месяц 812 500 р
Операционные платежи Включены в ставку
Коммунальные платежи По факту
НДС Не облагается
Не нашли подходящей площади? Оставьте запрос