Найти готовый к въезду офис

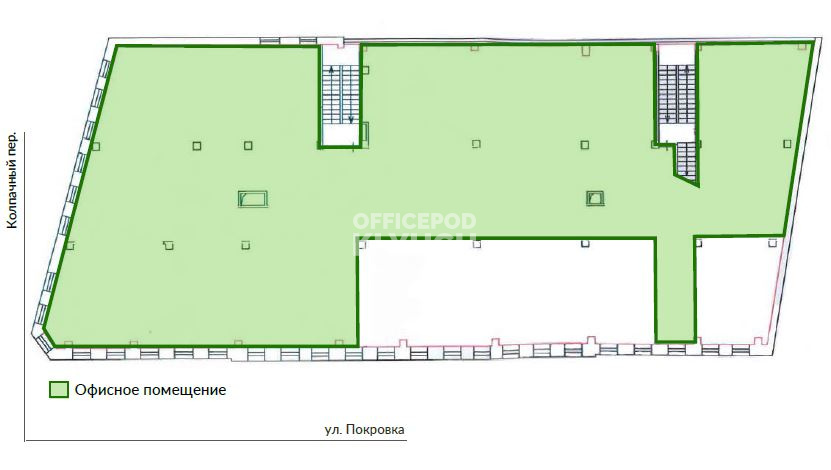
Покровка ул, д 8, Москва, 1044 м2

ПСН / Офис
Китай-город, Чистые пруды / 10 мин. пеш. Покровка ул, д 8, Москва
  • Общее
  • Коммерческие условия
Тип сделки Аренда
Назначение Офис
Площадь блока, м2 1044
Деление от, м2 -
Этаж 2
Состояние помещений Под арендатора
Ставка, м2/год 42 000 р
Стоимость в месяц 3 654 000 р
Операционные платежи Фиксированные
Коммунальные платежи По факту
НДС Включен в ставку
Не нашли подходящей площади? Оставьте запрос