Офис
Электрозаводская / 7 мин. пеш.
Семеновская М. ул, д 9 стр 1, Москва
- Общее
- Коммерческие условия
| Тип сделки | Аренда |
| Назначение | Офис |
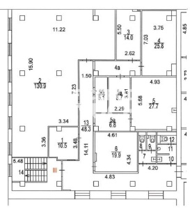
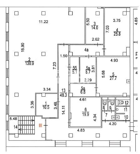
| Площадь блока, м2 | 314 |
| Деление от, м2 | - |
| Этаж | 2 |
| Состояние помещений | С отделкой |
| Ставка, м2/год | 16 400 р |
| Стоимость в месяц | 429 680 р |
| Операционные платежи | Включены в ставку |
| Коммунальные платежи | Включены в ставку |
| НДС | Включен в ставку |
Не нашли подходящей площади? Оставьте запрос