Офис
Марьина Роща, Савеловская / 10 мин. пеш.
Сущевский Вал ул, д 16 стр 1, Москва / стр. 3, 4, 5, 6
- Общее
- Коммерческие условия
| Тип сделки | Аренда |
| Назначение | Офис |
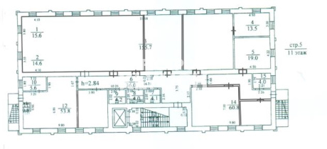
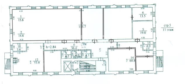
| Площадь блока, м2 | 392 |
| Деление от, м2 | - |
| Этаж | 11 |
| Состояние помещений | С отделкой |
| Ставка, м2/год | 14 100 р |
| Стоимость в месяц | 460 600 р |
| Операционные платежи | Включены в ставку |
| Коммунальные платежи | Включены в ставку |
| НДС | Не облагается |
Не нашли подходящей площади? Оставьте запрос




















