Офис / ПСН
Дубровка / 7 мин. пеш.
Шарикоподшипниковская ул, д 13 стр 5, Москва
- Общее
- Коммерческие условия
| Тип сделки | Аренда |
| Назначение | Офис |
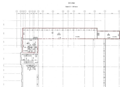
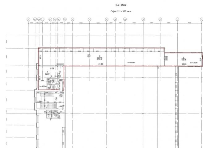
| Площадь блока, м2 | 325 |
| Деление от, м2 | - |
| Этаж | 2 |
| Состояние помещений | Без отделки |
| Ставка, м2/год | 16 000 р |
| Стоимость в месяц | 433 333 р |
| Операционные платежи | Включены в ставку |
| Коммунальные платежи | Включены в ставку |
| НДС | Включен в ставку |
Не нашли подходящей площади? Оставьте запрос