Офис / ПСН
Планерная, Речной вокзал / более 15 мин. тр.
Ленинградская ул, д 25, г Химки
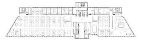
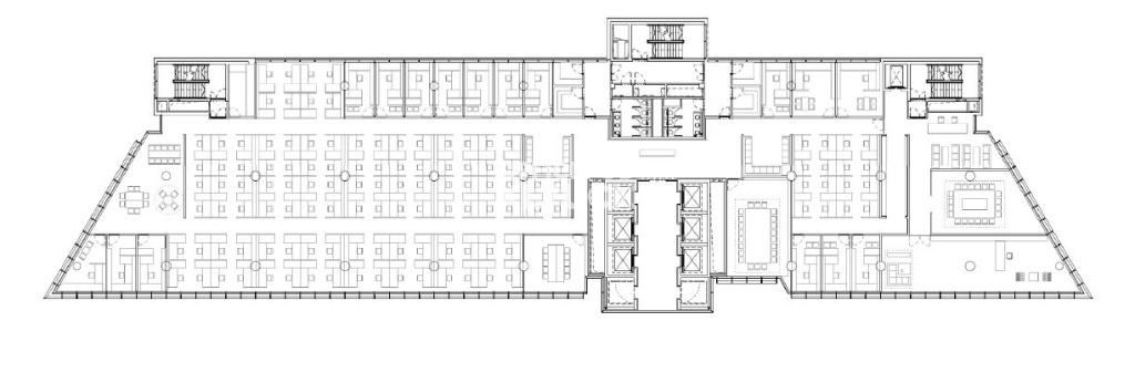
- Общее
- Коммерческие условия
| Тип сделки | Аренда |
| Назначение | Офис |
| Площадь блока, м2 | 1829 |
| Деление от, м2 | - |
| Этаж | 7 |
| Состояние помещений | Без отделки |
| Ставка, м2/год | 16 500 р |
| Стоимость в месяц | 2 514 325 р |
| Операционные платежи | Включены в ставку |
| Коммунальные платежи | Включены в ставку |
| НДС | Включен в ставку |
Не нашли подходящей площади? Оставьте запрос



