Офис
Белорусская, Менделеевская / 5 мин. пеш.
Лесная ул, д 43, Москва
- Общее
- Коммерческие условия
| Тип сделки | Аренда |
| Назначение | Офис |
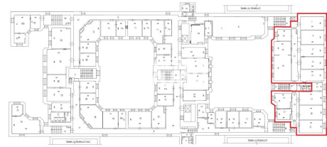
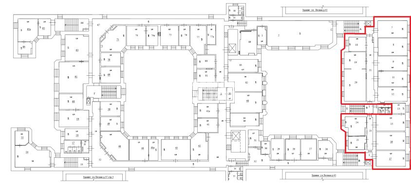
| Площадь блока, м2 | 210 |
| Деление от, м2 | - |
| Этаж | 4 |
| Состояние помещений | С отделкой |
| Ставка, м2/год | 40 000 р |
| Стоимость в месяц | 698 667 р |
| Операционные платежи | Включены в ставку |
| Коммунальные платежи | Включены в ставку |
| НДС | Включен в ставку |
Не нашли подходящей площади? Оставьте запрос


