Офис
Локомотив, Черкизовская / 7 мин. пеш.
Щелковское ш, д 2А, Москва
- Общее
- Коммерческие условия
| Тип сделки | Аренда |
| Назначение | Офис |
| Площадь блока, м2 | 361 |
| Деление от, м2 | - |
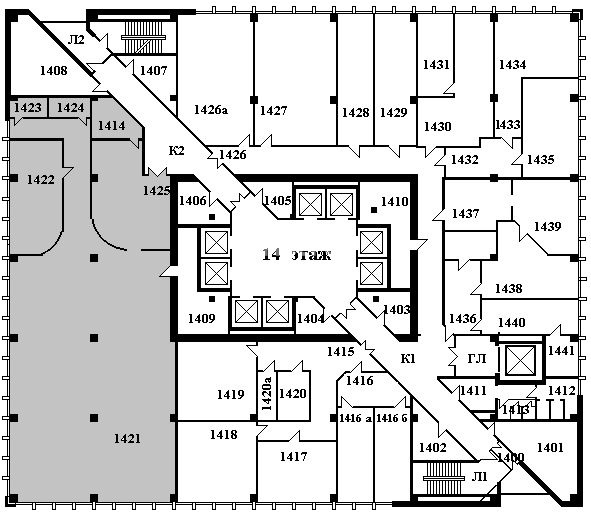
| Этаж | 14 |
| Состояние помещений | С отделкой |
| Ставка, м2/год | 10 800 р |
| Стоимость в месяц | 325 260 р |
| Операционные платежи | Включены в ставку |
| Коммунальные платежи | Включены в ставку |
| НДС | Включен в ставку |
Не нашли подходящей площади? Оставьте запрос